
У новинки АВТОВАЗа (Lada XRAY) множество особенностей. Например, на этом кроссовере впервые применены светодиодные ходовые огни, а в багажнике реализовано двойное дно (фальшпол или подпол высотой 10 см). Недостаток этого багажного пространства в том, что вещи, находившиеся в нем, при движении автомобиля беспорядочно перемещаются и гремят. Рассмотрим простой способ, как правильно организовать пространство штатного фальшпола Иксрея.
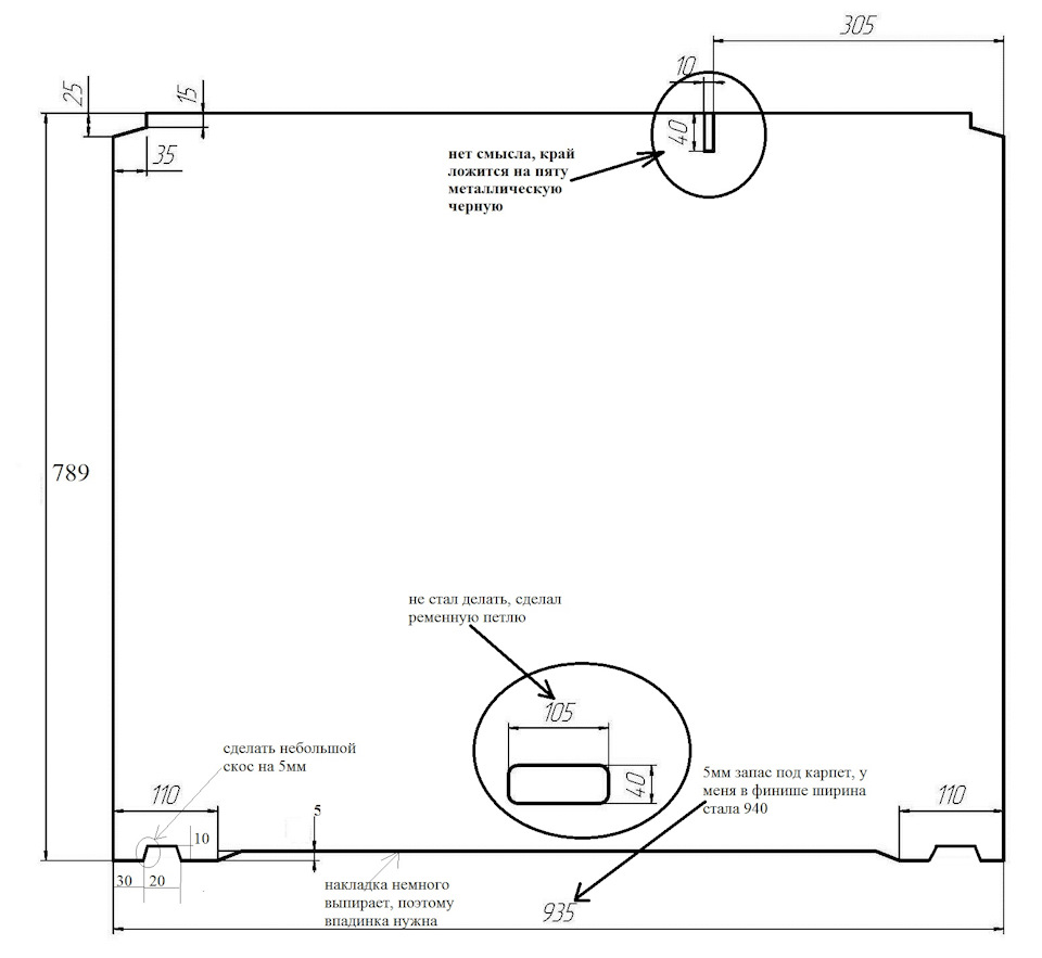
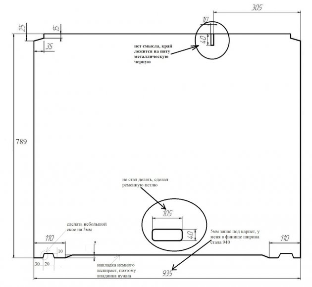
Идея доработки заключается в установке разграничителей, которые можно сделать из кусков фанеры толщиной 8 мм. Их размеры представлены на схеме:

Для эстетики можно обтянуть получившиеся детали самоклеящимся карпетом (либо использовать для обтяжки мебельный степлер). После установки такого органайзера в багажник XRAY, бока конструкции будут упираться торцами в пластиковую обшивку, а сзади в проём багажника. Не урираются только края возле задних сидений, там оставляем расстояние 2-3 см.
В результате разграниченное пространство под полом багажника не позволяет вещам перемещаться во время поездок. Еще одно преимущество такой конструкции в том, что она собирается без единого гвоздя и при необходимости может быть аккуратно сложена и убрана в сторону.
Процесс изготовления органайзера также показан на видео:
Где купить: в нашем интернет-магазине (категория Фильшполы XRAY).
Напомним, объем багажника кроссовера нельзя назвать большим (всего 361 литр). Рассмотрите варианты установки багажника на крышу XRAY.
Фото: бортовой журнал IgrTesla
Ключевые слова: багажник lada xray
Быстрая регистрация через соц.сети: