
БДФКЭ (блок дополнительных функций кузовной электроники) - один из электронных блоков Lada Vesta и XRAY (устанавливается не на все комплектации автомобилей). Рассказываем про его назначение, распиновку разъемов, процедуры, выполняемые при замене БДФКЭ, коды неисправностей и пр.

Сокращения:
Артикулы БДФКЭ:
На Весте БДФКЭ находится за задней панелью центрального подлокотника (позиция №3):
Как добраться на видео:
На XRAY БДФКЭ находится за приборной панелью (торпедо) (позиция №4):
БДФКЭ предназначен для управления электронагревательными элементами сидений и ветрового стекла. Электронагревательные элементы включаются при работающем двигателе автомобиля.
В БДФКЭ реализована функция ступенчатого изменения уровня подогрева сидений водителя и переднего пассажира.
Технические характеристики электронагревательных элементов сидений:
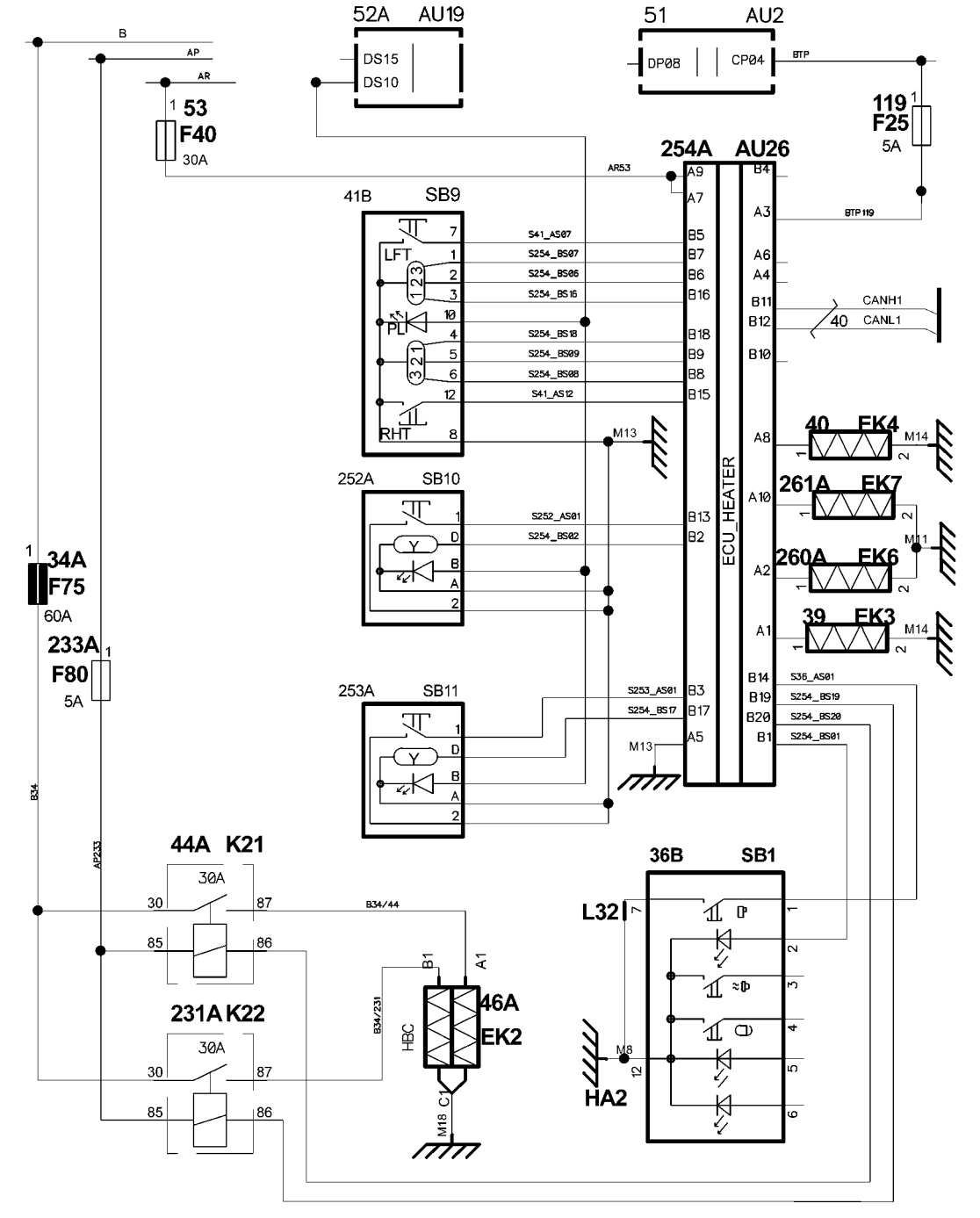
Схема электрических соединений БДФКЭ на автомобиле LADA VESTA:
34 – предохранитель 60А (F75) (обогрев ветрового стекла); 36 – блок выключателей; 39 – обогреватель переднего левого сиденья; 40 – обогреватель переднего правого сиденья; 41 – БУОС; 44 – реле 1 обогрева ветрового стекла; 46 - обогреватель ветрового стекла; 51 – ЦБКЭ (контроллер ВСМ); 52 – БКЭД (контроллер ЕММ); 53 – предохранитель 30А (F40) (обогрев сидений); 119 – предохранитель 5А (F25); 231 – реле 2 обогрева ветрового стекла; 233 – предохранитель 5А (F80) (реле обогрева ветрового стекла); 252 – кнопка обогрева заднего правого сиденья; 253 – кнопка обогрева заднего левого сиденья; 254 – БДФКЭ; 260 – обогреватель заднего левого сиденья; 261 – обогреватель заднего правого сиденья
Назначение контактов разъёма БДФКЭ:
Разъем А
Разъем В
На блоке дополнительных функций кузовной электроники присутствует 2 разъема (источник):
1. (A) Разъем 10-ти пиновый черный TE 929504-4 из серии Junior Power Timer
Пины TE 927768-3
Так же есть ответная часть TE 929505-4, пины 964132-2
2. (B) Разъем 20-ти пиновый черный TE 174047-2 из серии Multilock 040
Пины TE 173681-1
Так же есть ответная часть TE 175652-2, пины TE 173682-1
После замены БДФКЭ необходимо с помощью диагностического прибора Grade-X в режиме «Функции» выполнить следующие процедуры:
* - по состоянию на 09.2018 г., БДФКЭ поставляется с одним конфигурационным файлом, поэтому в настоящее время при замене БДФКЭ процедура автоматического конфигурирования не выполняется
Просмотр кодов неисправностей возможен с помощью диагностического прибора, например, Grade-X в режиме «Ошибки».
По каждой обнаруженной неисправности в памяти контроллера БДФКЭ сохраняется:
Код неисправности сохраняется в памяти со статусом "активный", если последний диагностический тест завершен с отрицательным результатом.
Код неисправности сохраняется в памяти со статусом "неактивный", если последний диагностический тест завершен с положительным результатом, но предыдущие были завершены с отрицательным результатом. Такое проявление возможно, если в автомобиле присутствует непостоянная неисправность. Причиной непостоянной неисправности может быть повреждение изоляции проводов, повреждение контактов в соединительных колодках, ненадежное соединение колодок. "Неактивный" код неисправности стирается из памяти, если диагностические тесты завершены с положительным результатом в определенном количестве последних циклов включения / выключения зажигания.
Стереть ошибки можно с помощью диагностического прибора в режиме «Ошибки; Стереть и обновить».
Перечень кодов неисправностей БДФКЭ:
В1001-11 Короткое замыкание нагревателя переднего левого сиденья
В1001-13 Обрыв цепи нагревателя переднего левого сиденья
В1001-23 Залипание кнопки включения нагревателя переднего левого сиденья
В1002-11 Короткое замыкание нагревателя переднего правого сиденья
В1002-13 Обрыв цепи нагревателя переднего правого сиденья
В1002-23 Залипание кнопки включения нагревателя переднего правого сиденья
В1003-11 Короткое замыкание нагревателя заднего левого сиденья
В1003-13 Обрыв цепи нагревателя заднего левого сиденья
В1003-23 Залипание кнопки включения нагревателя заднего левого сиденья
В1004-11 Короткое замыкание нагревателя заднего правого сиденья
В1004-13 Обрыв цепи нагревателя заднего правого сиденья
В1004-23 Залипание кнопки включения нагревателя заднего правого сиденья
В1017-23 Залипание кнопки включения обогрева ветрового стекла
В1019-12 Замыкание цепи управления реле 1 обогрева ветрового стекла на бортсеть
В1019-14 Замыкание цепи управления реле 1 обогрева ветрового стекла на массу или обрыв
В1020-12 Замыкание цепи управления реле 2 обогрева ветрового стекла на бортсеть
В1020-14 Замыкание цепи управления реле 2 обогрева ветрового стекла на массу или обрыв
В1021-16 Низкое напряжение питания блока
В1022-17 Высокое напряжение питания блока
В1024-11 Ошибка перегрева ключа управления нагревателем DA5 (Нагр.сидений правой стороны)
В1025-11 Ошибка перегрева ключа управления нагревателем DA4 (Нагр.сидений левой стороны)
В1026-41 Ошибка восстановления EEPROM
В1026-42 Ошибка записи EEPROM
U1001-86 Ошибка коммуникации с КСУД: некорректный статус двигателя
U1001-87 Ошибка коммуникации с КСУД: нет кадра в CAN
U1104-86 Ошибка коммуникации с BCM: некорректный статус диагностики
U1104-87 Ошибка коммуникации с BCM: нет кадра в CAN
U1105-86 Ошибка коммуникации с BCM: некорректный сигнал состояния ПДУ
U1105-87 Ошибка коммуникации с BCM: нет кадра в CAN
U1108-86 Ошибка коммуникации с BCM: некорректный уровень напряжения
U1108-87 Ошибка коммуникации с BCM: нет кадра в CAN
U1114-86 Ошибка коммуникации с BCM: некорректный статус уровня питания автомобиля
U1201-86 Ошибка коммуникации с ESP: некорректный сигнал скорости
U1201-87 Ошибка коммуникации с ESP: нет кадра в CAN
U1211-86 Ошибка коммуникации с ESP: некорректный сигнал пробега
U1304-86 Ошибка коммуникации с КП: некорректный сигнал температуры окружающей среды
U1304-87 Ошибка коммуникации с КП: нет кадра в CAN
U1403-87 Ошибка коммуникации с контроллером CLIMBOX
Напомним, ранее мы рассказывали про восстановление БКЭД (блок кузовной электроники дополнительный или EMM).
Ключевые слова: подогревы лада веста | подогревы lada xray
Быстрая регистрация через соц.сети: